Ce projet s'inscrit dans le cadre du renouvellement des aires de repos imposé par l'État aux concessionnaires autoroutiers. Au cours de cette période, les acteurs majeurs du secteur pétrolier et d'autres grandes enseignes de distribution de carburants sont mis au défi de concourir pour obtenir des aires de repos et d'étendre leurs points de vente. Certains groupes font appel à des experts en architecture, paysage et environnement pour élaborer des solutions commerciales et architecturales innovantes. De 2009 à 2022, une collaboration avec l'Atelier UNZA a permis de concevoir des projets originaux, apporter une touche de singularité et d'hospitalité à ces espaces de passage.
Pont-Chêne d'Argent fait partie des premiers projets de cette nouvelle vague. Le concours exigeait la démolition du bâtiment existant et la construction d'un nouveau. Une proposition de réhabilitation, d'extension et de relooking a été présentée, visant à réduire les coûts, les délais et l'impact environnemental du projet. L'extension a été conçue en harmonie avec la géométrie du bâtiment existant. Les espaces intérieurs ont été entièrement repensés pour répondre à l'obligation d'accroître le nombre de services et d'équipements. Les économies réalisées sur cette phase du projet ont permis d'investir davantage dans un relooking plus raffiné que celui généralement prévu pour ce type de programme.
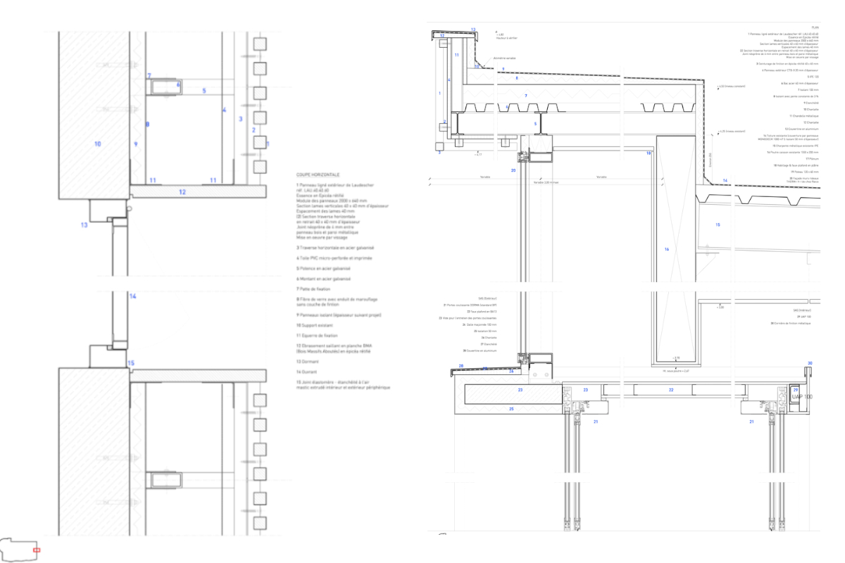
L'enveloppe proposée se compose de trois parties distinctes. Une partie vitrée, de type full glass, une partie en bois pour accentuer la sensation de hauteur du bâtiment, et une partie en bâche de camion imprimée dans les zones considérées comme moins nobles et moins vulnérables du projet. Ces bâches arborent des graphismes en lien avec la localisation du site. En fonction des périodes et des événements, le projet prévoit un remplacement des bâches pour animer et dynamiser l'apparence de la station.
Pont Chêne d'Argent
Réhabillage