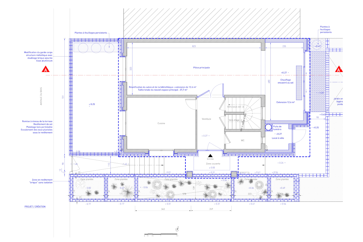
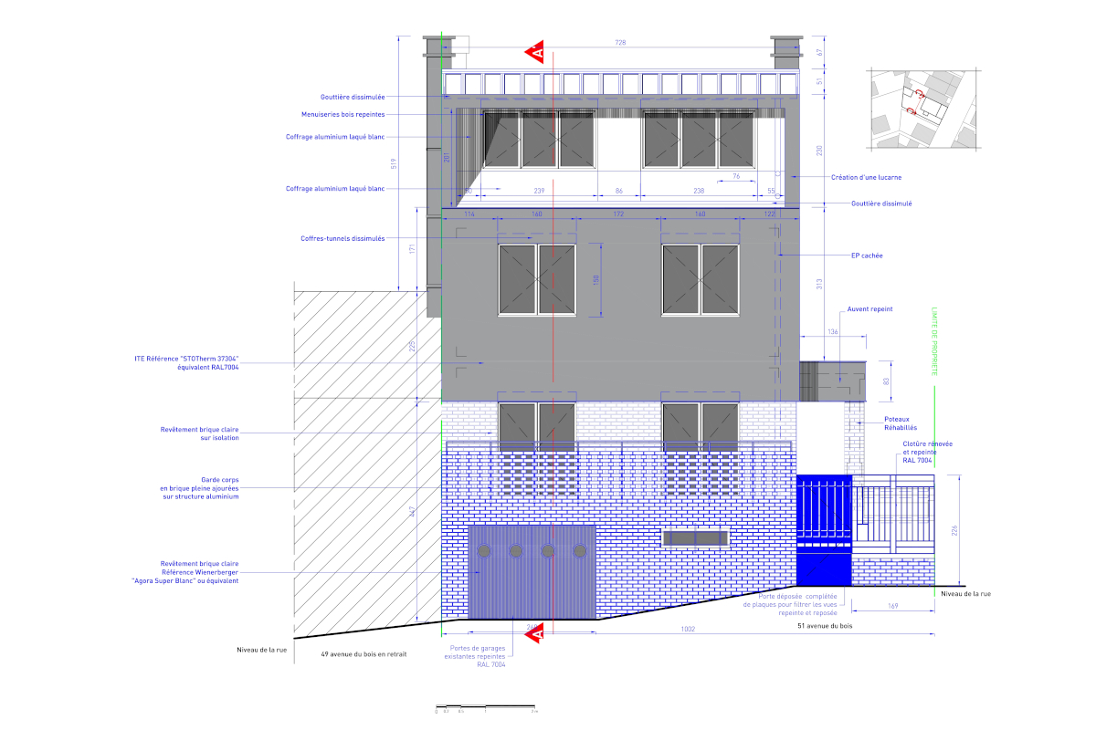
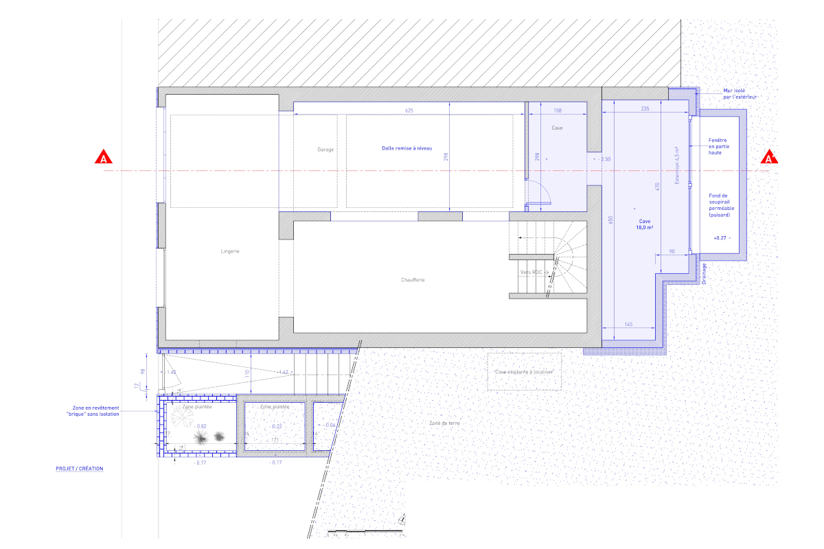
L'ancienne maison, dont la simplicité géométrique avait été altérée par une surélévation antérieure, a été complètement transformée pour arborer une nouvelle apparence. Deux approches distinctes ont été adoptées pour générer un contraste visuel. Le soubassement, s'étendant du sous-sol au rez-de-chaussée, a été revêtu d'une brique claire, en harmonie avec le style architectural prédominant des maisons environnantes. Au-delà de ce niveau, un enduit gris a été appliqué sur les quatre façades pour créer un contraste tout en préservant les menuiseries en PVC blanc.
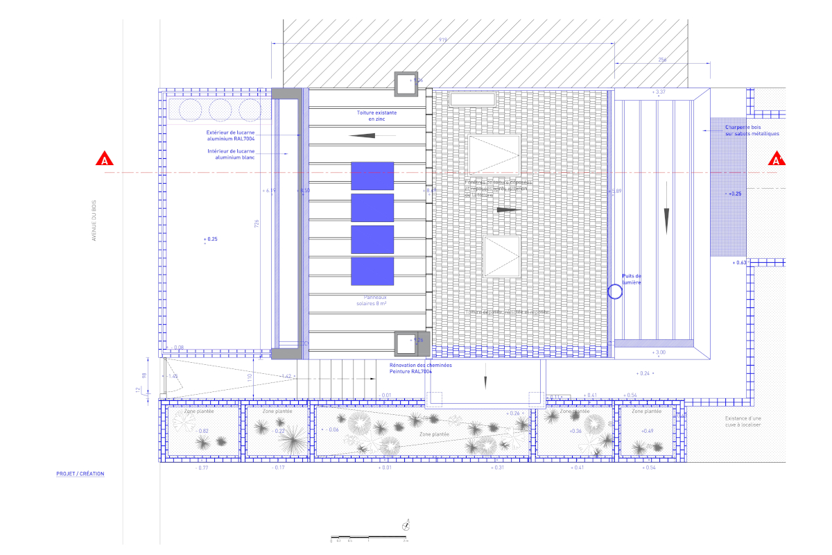
La toiture existante a été retirée, isolée et réinstallée. Les encadrements de fenêtres ont été soigneusement revêtus d'aluminium laqué blanc. Cette teinte a également été choisie pour les volets roulants. Les capots des volets ont été intégrés discrètement dans la façade principale et le pignon d'entrée. La clôture le long de la rue a été rénovée et repeinte pour s'aligner avec la couleur de l'enduit, tout comme les portes du garage et le portail d'entrée.
Ces aménagements ont été entrepris en réponse à la demande de la maîtrise d'ouvrage visant à améliorer les performances énergétiques de sa résidence familiale, réduisant ainsi les consommations d'énergie. Cette initiative a également permis de bénéficier d'une bonification de COS spécifique au Plan Local d'Urbanisme (PLU) de Meudon.
Meudon
Relooking