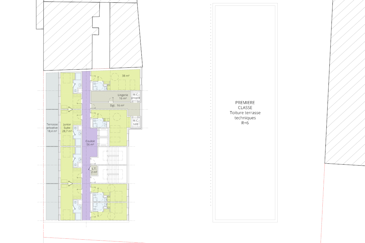
Ayant contribué à orienter, élaborer et affiner un programme pour le groupe Tranchant, axé sur le développement d'une offre hôtelière sur l'un de ses terrains, la première étape de la mission consistait à calculer la capacité maximale de construction du site. À la suite de l'analyse du Plan Local d'Urbanisme (PLU), deux options d'implantation ont émergé comme les plus favorables. En utilisant le design computationnel, j'ai intégré les données du PLU, les caractéristiques du terrain et les directives du programme pour optimiser les configurations d'implantation, les hauteurs, les retraits, etc., pour chacune des options. La précision des résultats a conduit à l'orientation du programme vers la réalisation de deux hôtels, comprenant 120 chambres 2* et 80 chambres 4* respectivement.
Saint Denis
Étude capacitaire scriptée