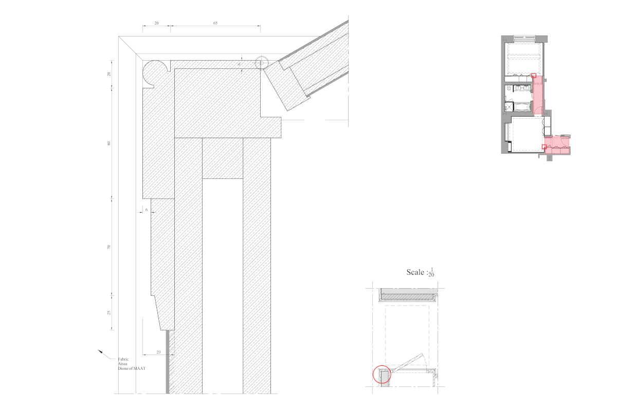
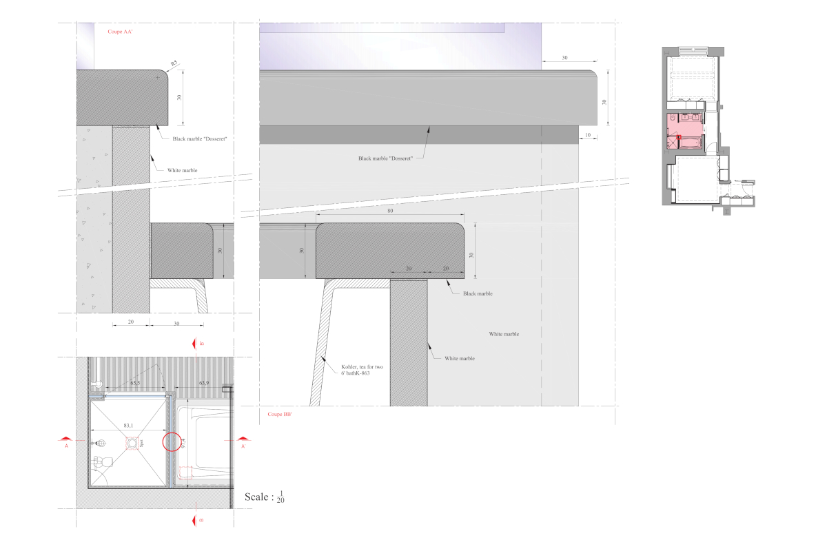
Quand on produit les pièces graphiques pour le projet déco d'un grand nom de la scène internationale, la précision et la qualité graphique des plans participent à la réalisation d'ouvrages de qualité et à la communication commerciale du projet. Le dossier PRO se compose de plans, d'élévations et de carnets de détails, tous disponibles en version bilingue, formant ainsi une documentation complète.
Mark Hotel
Projet déco